
Complexe hôtelier et commerces au parc des expositions – Porte de Versailles.
Construction d’un ensemble Hôtelier, toiture terrasse, centre de réunion, restaurant, commerce.
Développement de la phase PRO au sein de l'agence ©Wilmotte et Associes Architectes.

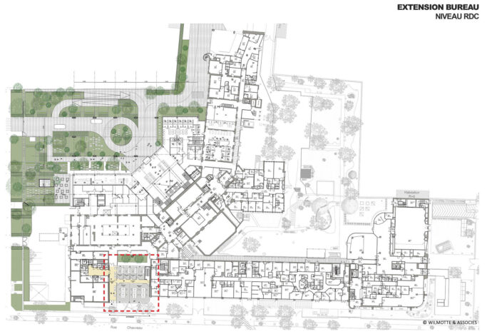
Le Forum - Lille. Projet de regroupement des services départementaux du Nord. Construction neuf.
Participation au projet dans le sein de l'agence ©Wilmotte et Associes Architectes. Esquisse.

Zones d'interventions : Construction neuf du bâtiment K 5 785 m², extension bureau 1 174 m² + Réhabilitation.
Participation au projet dans le sein de l'agence ©Wilmotte et Associes Architectes.

Projet de construction d’un ensemble immobilier de logements, commerces et activités. Sur un terrain de 0,8 hectare, le projet se compose de trois bâtiments de 18, 10 et 6 étages, soit 373 logements, dont 108 logements d’une résidence pour seniors. Le projet comprend également une crèche et des commerces.
Participation au projet dans le sein de l'agence ©Wilmotte et Associes Architectes. Conception, conversation MO.

Construction d’un ensemble résidentiel de luxe. Restauration + Neuf.
Chargé de projet dans le sein de l'agence ©Wilmotte et Associes Architectes. Conception, administration générale, contrat, conversations MO.

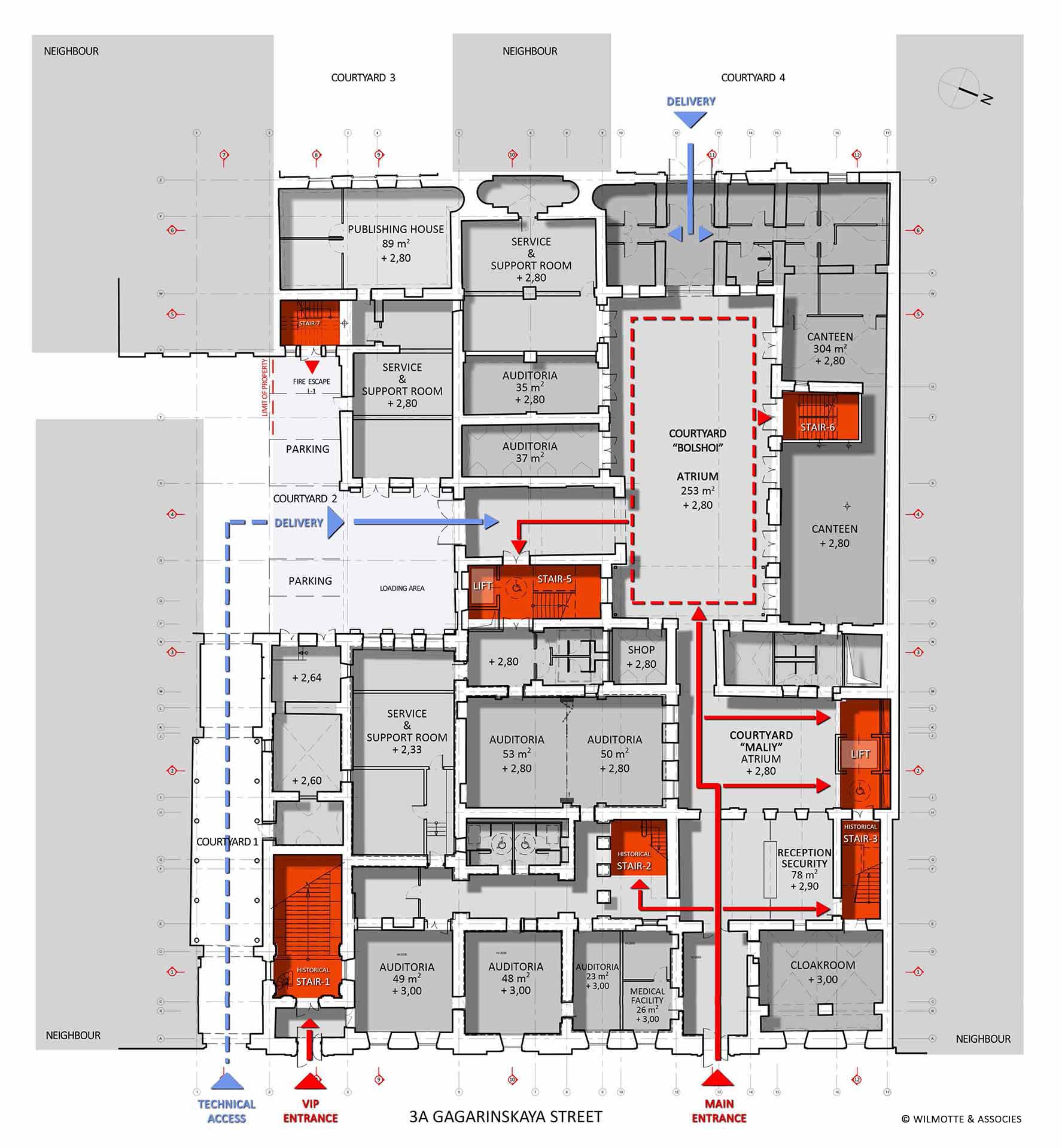
Université Européenne à Saint-Pétersbourg
(Édifice classé MH). Réhabilitation + Neuf.
Projet lauréat d'un concours international.
Refurbishment of the N.A. Kushelev-Bezborodko (Y.M. Yuryevskaya’S) palace, located at Gagarinskaya street, St. Petersbourg to the educational needs of nongovernmental education institution of higher professional education.
Chargé de projet dans le sein de l'agence ©Wilmotte et Associes Architectes. Conception, administration générale, contrat, conversations MO. Concours, PC, APS+

Centre Spirituel et Culturel Orthodoxe Russe au quai Branly à Paris.
Construction d’un Centre Spirituel et Culturel, d’une Cathédrale orthodoxe, centre paroissiale, d'un auditorium et d’un pôle éducatif.
Participation au projet dans le sein de l'agence ©Wilmotte et Associes Architectes.

Hôtel Zadig & Voltaire. Requalification + Neuf. Rue de Grenelle, Paris.
Participation au développement de la phase DCE dans le sein de l'agence ©Wilmotte et Associes Architectes.

Édifice classé MH. Réhabilitation + Neuf. Une chapelle au cœur de l’espace et du projet.
Participation au développement du projet dans le sein de l'agence ©Wilmotte et Associes Architectes.

Projet d'un Musée de l'Amour à Bakou.
Au cœur de la Ville historique réhabilitation, valorisation d'un Édifice classé Monument Historique + construction neuf.
Chagré de projet dans le sein de l'agence ©Wilmotte et Associes Architectes. Conception, gestion, conversations.

Projet d'un Centre International Mémorial Africain. Memorial, Musée. Construction neuf.
Participation au développement du projet dans le sein de l'agence ©Wilmotte et Associes Architectes.

Édifice classé MH. Requalification de l’ancien Evêché de Toulon en Hôtel - 48 chambres, restaurant et commerces. Réhabilitation, valorisation + Neuf.
L’ancien Evêché est mitoyen de la Cathédrale Sainte Marie de la Seds. L’arrêté mentionné ci-dessous indique que l’ancien Evêché « présente un intérêt d’histoire et d’art suffisant pour en rendre désirable la préservation en tant que témoin historique et en raison de la qualité de son architecture. »
Chargé de projet dans le sein de l'agence ©Wilmotte et Associes Architectes. Conception, administration, gestion, conversations.

Bakou Cinéma - Restaurant. Réhabilitation, valorisation + Neuf.
Participation au développement du projet dans le sein de l'agence ©Wilmotte et Associes Architectes : Conception, administration, gestion, conversations.

Kaliningrad-Centre-Ville. Projet urbain. Reconstitution du centre historique de la ville Kaliningrad. Réhabilitation du "Palais des soviets".
Participation au développement du projet dans le sein de l'agence ©Wilmotte et Associes Architectes : Conception, administration, gestion, conversations, correspondance Paris-Moscou-Kaliningrad.

Nagatino-ZIL. Projet urbain - 32 ha. Construction neuf.
Esquisse du développement du territoire: Technoparc, Logements, Centre d’affaires, Commerce.
Participation au développement du projet dans le sein de l'agence ©Wilmotte et Associes Architectes. Gestion, conversations Paris-Moscou dans le cadre d’une autonomie partielle.

Complexe Judiciaire. Tribunal + Logements, Théâtre, Espace public.
Chargé de projet dans le sein de l'agence ©Wilmotte et Associes Architectes. Conception, administration, gestion, conversations.

Édifice classé MH. Réhabilitation et transformation de l’ancienne forteresse de Kiev aux bureaux et commerce.
Participation au développement du projet - Esquisse, APS+ dans le sein de l'agence ©Wilmotte et Associes Architectes. Chargé de projet.

Projet lauréat pour le Stade de Kaliningrad pour ‘2018 FIFA World Cup’. 45 000 pl.
Participation au développement de la phase Esquisse+ dans le sein de l'agence ©Wilmotte et Associes Architectes.